Аренда 509― Помещение под ресторан, бар, кафе, кулинарию.

Fixed Dimensions

Images with fixed dimensions
images/35x35/1.jpg

Адрес: м.Бауманская 5 м.п. Площадь: 350 Стоимость аренды: 1200$ кв.м. год

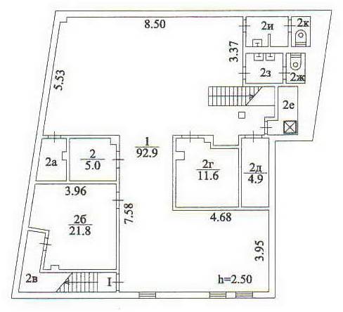
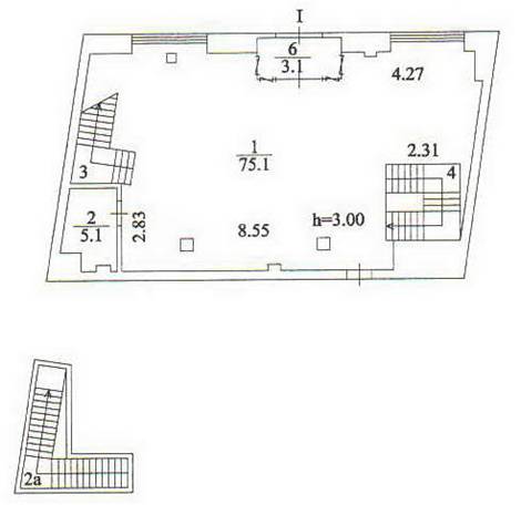
Особняк площадью 350 кв.м., расположен на оживленной улице. Хороший пешеходный и автомобильный поток, вокруг множество жилых домов и деловых центров. В радиусе 100 метров расположены сетевые рестораны (Макдональдс, Елки-палки и др.),  супермаркет, магазины одежды и обуви, рынок выходного дня и т.д. Здание полностью реконструировано, оснащено всеми центральными коммуникациями,  кондиционированием, вентиляцией. Выделенная мощность – 62,5 кВт. Здание имеет вход с фасада и запасные входы со двора, окна на всех трех уровнях. Высота потолков – 2,7-3,0 м. Три уровня: цоколь – 150 кв.м., первый этаж – 107 кв.м., второй этаж – 84 кв.м. Планировка свободная. Собственный двор 85 кв.м. в долгосрочной аренде для размещения веранды или парковки. Прямая долгосрочная аренда.

Аренда – 35000$ в месяц. Торг возможен.

Без комиссии

Мария, т.+79851833286