Аренда 474 ― Аренда помещения под бар, клуб, ресторан.

Fixed Dimensions

Images with fixed dimensions
images/35x35/1.jpg

Адрес: м. Парк Культуры (3 м.п.) Площадь: 800 кв.м. Стоимость аренды: $500 кв.м./год

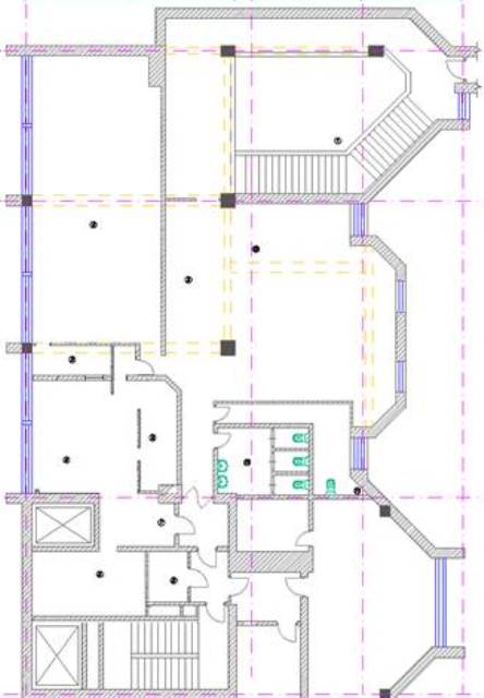
Уникальное предложение! Сдается в аренду помещение под ресторан-клуб. Помещение размещается на 1-м и 2-м этажах административного здания, на 1-й линии Садового кольца. Огромный пешеходный и транспортный трафик. Три отдельных входа. Возможность размещения вывески на Садовом кольце. Возможна круглосуточная работа. Охраняемая парковка. Летняя веранда. Все помещения оснащены приточно-вытяжной системой вентиляции и кондиционирования. Холодное и горячее водоснабжение и отопление. Пожарная сигнализация. В помещении произведены все строительные работы под чистовую отделку, согласно проекту. Предусмотрено размещение: двух залов, бара, танцпола, кофейни, а так же все производственные и вспомогательные помещения. Выделенная мощность - 130 кВт, с возможностью увеличения до 200 кВт. Телефония МГТС. Долгосрочный договор. 

Аренда – 33.333 USD/мес. 

Комиссия - 50%.

Андрей +7 985 183-3289;  +7 495 662-9918;